Oferty
(1)Pozostałe oferty od najtańszej
Opis i specyfikacja
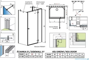
Essenza Black KDJ+S kabina prysznicowa 100x80x100cm marki RadawayKolor profili: czarnyKolor szkła: przejrzysteWymiar brodzika drzwi prawe (A1): 80 cmWymiar ścianka boczna (A2): 100 cmWymiar do osi szyby drzwi prawe (Y1 ):
76 cmWymiar do osi szyby ścianka boczna (Y2 ): 96,7-97,2 cmWysokość: 200 cmWersja: prawaPowłoka EASY CLEAN: TakGwarancja producenta:
3 lataKod produktu drzwi: 1385021-54-01RKod produktu ścianka boczna: 1384052-01-01Kod produktu ścianka boczna: 1384052-01-01Wypełnienie: Szkło hartowaneMontaż na posadzce:
TakMontaż na brodziku: TakKształt: prostokątnaGrubość szkła: 6 mmBrodzik w komplecie: Nie Rodzaj drzwi:
1-częścioweOtwieranie drzwi:
Uchylne Drzwi na krótszym bokuZawias zlicowany z taflą szkłaMechanizm unoszący i opuszczający drzwiSystem umożliwiający niwelację krzywizny ścianyPowłoka Easy Clean ułatwiająca utrzymanie czystościMożliwość montażu z listwą lub bez listwy progowejMosiężne stabilizatory zapewniające solidną konstrukcjęEleganckie czarne detaleW zestawie uszczelka magnetyczna przejrzystaOpcje dostępne za dopłatą (termin realizacji wydłuża się do 10 dni roboczych):
- inny wariant szkła:
brązowe, grafitowe, satynowe, UltraClear, Mirror - grawer na szkle - wieszak na ręcznik Opcje dostępne za dopłatą (termin realizacji wydłuża się do 5 dni roboczych):
- wymiana uchwytu - wymiana uszczelekZa pobraniem termin wydłuża się o 3 dni robocze.
CECHY PRODUKTUPowłoka EasyClean® to niewidoczna gołym okiempolimerowa warstwa ochronna, nakładana w procesieobróbki szkła. Ma ona właściwości hydrofobowe,dzięki czemu krople wody nie utrzymują się napowierzchni szkła, tylko spływają, nie pozostawiającosadów. W procesie nanoszenia warstwa EasyClean® tworzystałe połączenie z krzemem zawartym w szkle,stając się częścią powierzchni szkła. Powstała w tensposób powłoka ma charakter trwały i tym właśnieróżni się od dostępnych na rynku impregnatówdo szkła, które zapewniają jedynie krótkotrwałąochronę.
Niestety, pod wpływem wody orazśrodków myjących skuteczność działania powłoki(zwłaszcza właściwości hydrofobowych) stopniowoobniża się, dlatego raz na 6 miesięcy zalecamystosowanie środka EasyClean® Glass Protector,który odświeża warstwę ochronną. ELEGANCKIE CZARNE DETALELISTWA MAGNETYCZNAzapewnia szczelność kabiny. ELASTOMEROWE USZCZELKIodporne na zmianę temperatury i wilgotności. MONTAŻ BEZ BRODZIKATę kabinę można zamontować zarówno na brodziku, jak i bezpośrednio na podłodze. ZLICOWANIE Z TAFLĄ SZKŁAZawiasy zostały zlicowane z taflą szkła – jednolita powierzchnia ułatwia czyszczenie kabiny.
SZKŁO 6 MMSzkło bezpieczne, hartowane o grubości 6 mm, zgodne z normą PN: EN 12150: 1. . . .
Produkty polecane dla Ciebie
















