Oferty
(1)Pozostałe oferty od najtańszej
Opis i specyfikacja
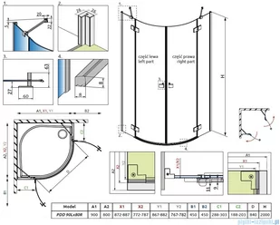
Essenza Black PDD kabina prysznicowa 90x80cm marki RadawayKolor profili: czarnyKolor szkła: przejrzysteWymiar brodzika część lewa (A1): 90 cmWymiar brodzika część prawa (A2): 80 cmWymiar do osi szyby część lewa (Y1 ):
86,7-88,2 cmWymiar do osi szyby część prawa (Y2 ): 76,7-78,2 cmWysokość: 200 cmPowłoka EASY CLEAN: TakGwarancja producenta: 3 lataKod produktu część lewa:
1385001-54-01LKod produktu część prawa: 1385002-54-01RWypełnienie: Szkło hartowaneMontaż na posadzce: TakMontaż na brodziku: TakKształt:
półokrągłaGrubość szkła: 6 mmBrodzik w komplecie: Nie Rodzaj drzwi: 2-częścioweOtwieranie drzwi:
Uchylne Zawias zlicowany z taflą szkłaMechanizm unoszący i opuszczający drzwiSystem umożliwiający niwelację krzywizny ścianyPowłoka Easy Clean ułatwiająca utrzymanie czystościMożliwość montażu z listwą lub bez listwy progowejMosiężne stabilizatory zapewniające solidną konstrukcjęEleganckie czarne detaleW zestawie uszczelka magnetyczna przejrzystaOpcje dostępne za dopłatą (termin realizacji wydłuża się do 5 dni roboczych):
- wymiana uszczelek- wymiana uchwytu Za pobraniem termin wydłuża się o 3 dni robocze.
CECHY PRODUKTUPowłoka EasyClean® to niewidoczna gołym okiempolimerowa warstwa ochronna, nakładana w procesieobróbki szkła.
Ma ona właściwości hydrofobowe,dzięki czemu krople wody nie utrzymują się napowierzchni szkła, tylko spływają, nie pozostawiającosadów. W procesie nanoszenia warstwa EasyClean® tworzystałe połączenie z krzemem zawartym w szkle,stając się częścią powierzchni szkła. Powstała w tensposób powłoka ma charakter trwały i tym właśnieróżni się od dostępnych na rynku impregnatówdo szkła, które zapewniają jedynie krótkotrwałąochronę. Niestety, pod wpływem wody orazśrodków myjących skuteczność działania powłoki(zwłaszcza właściwości hydrofobowych) stopniowoobniża się, dlatego raz na 6 miesięcy zalecamystosowanie środka EasyClean® Glass Protector,który odświeża warstwę ochronną. ELEGANCKIE DETALELISTWA MAGNETYCZNAzapewnia szczelność kabiny.
ELASTOMEROWE USZCZELKIodporne na zmianę temperatury i wilgotności. MONTAŻ BEZ BRODZIKATę kabinę można zamontować zarówno na brodziku, jak i bezpośrednio na podłodze. ZLICOWANIE Z TAFLĄ SZKŁAZawiasy zostały zlicowane z taflą szkła – jednolita powierzchnia ułatwia czyszczenie kabiny. SZKŁO 6 MMSzkło bezpieczne, hartowane o grubości 6 mm, zgodne z normą PN: EN 12150: 1. . . .
Produkty polecane dla Ciebie









