Oferty

(1)

Pozostałe oferty od najtańszej

Komplet elementów do wykonania samodzielnie stelaża na grunt na 6 paneli 30mm w pionie
674,72 zł
IDŹ DO SKLEPU

Opis i specyfikacja

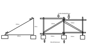
Zestaw elementów do samodzielnego wykonania systemu montażowego na 6 panele w pionie, posadowionego na gruncie. Jest to kompletny system i zawiera wszystkie elementy prócz bloczków betonowych i kołków rozporowych. instrukcja w zakładce "Do pobrania" Grubość paneli 35mm, panele o szerokości max 111 cm, wysokość 164 do 212cm. Można zastosować panele dłuższe np. 212 cm, ale wtedy zalecamy wysunięcie paneli do przodu o 20 do 30cm tak aby nie wystawały za bardzo z tyłu konstrukcji (60cm max).

Jeśli będą wysunięte do przodu stelaż musi być posadowiony na bloczkach betonowych i do nich przymocowany. Wysunięte do przodu panele nie pozwolą na bezpośrednie położenie na gruncie konstrukcji. Zalecany balast 150 kg (6 bloczków po 25kg)